REZIDENTIS DUO
Două locuințe moderne, proiectate pe un singur nivel pentru a oferi un stil de viață eficient.
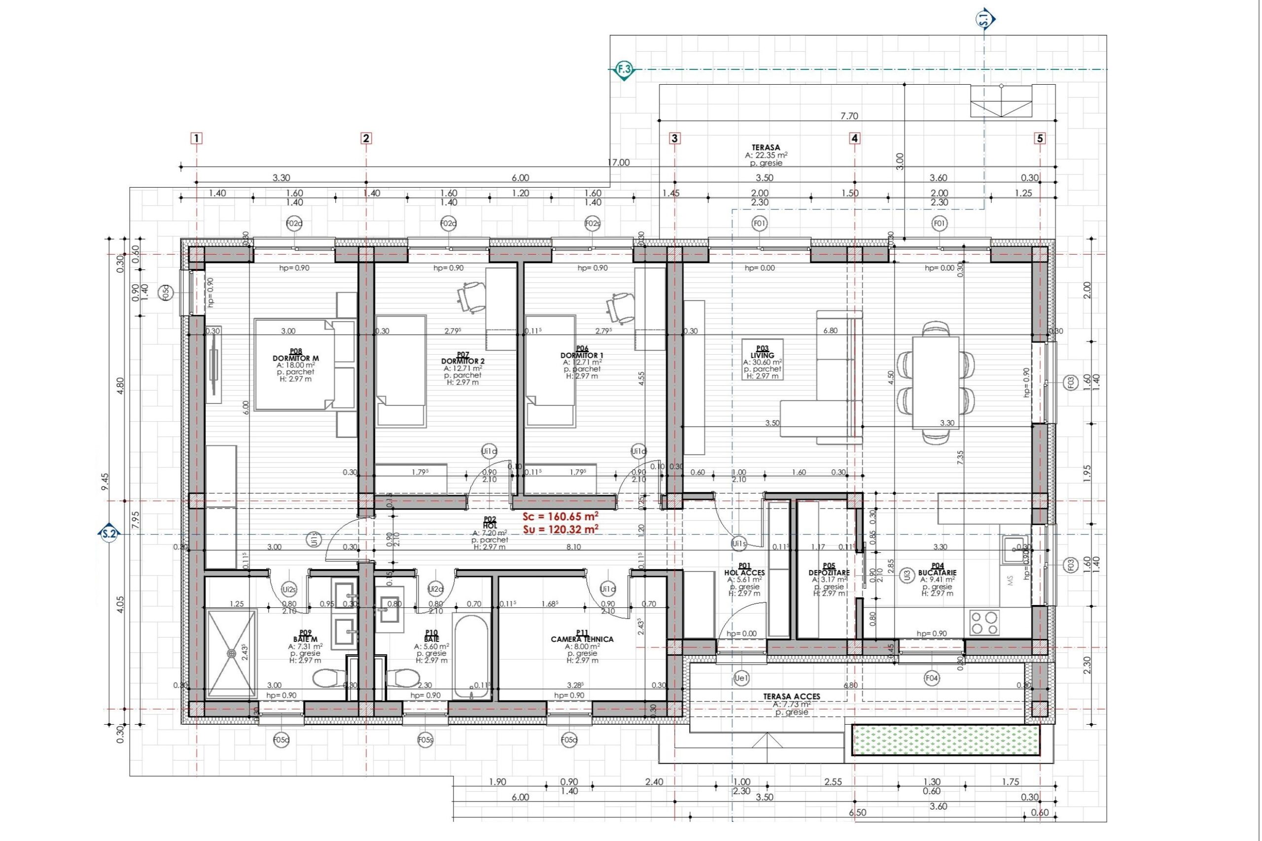
Proiectul „Rezidentis Duo” a fost conceput cu două obiective principale: eficiență pe termen lung și confortul familiei. Prin utilizarea de soluții constructive moderne și materiale de înaltă calitate, am urmărit reducerea semnificativă a costurilor lunare de întreținere. Compartimentarea interioară a celor 4 camere este rezultatul unei analize atente a nevoilor cotidiene, separând armonios zona de zi de cea de noapte, pentru a oferi atât spații comune primitoare, cât și intimitate fiecărui membru al familiei.





